宝贝腿开大一点你真湿h,丰满成熟的老寡妇bd,女儿的爱人2,精品白浆,91国产免费看,看到下面流水的视频,小妮子又嫩又紧h,台湾同志男男gay1069
凱爾菱電(山東)電梯有限公司官網,歡迎來電咨詢:400-0537-868
凱爾菱電(山東)電梯有限公司

凱爾菱電(山東)電梯有限公司

KYLERYODEN(SHANDONG)ELEVATOR CO.,LTD.
服務熱線
網站首頁 公司簡介 產品展示 工程案例 新聞中心 企業風采 資質榮譽 聯系我們
您現在的位置:網站首頁>無機房電梯

— 無機房電梯 —

乘客電梯

無機房電梯

小機房電梯

觀光電梯

醫用電梯

別墅電梯

載貨電梯

無機房載貨電梯

汽車電梯

雜物電梯

自動人行道

自動扶梯

垂直往復式滾筒提升機

立體車庫

無機房電梯

微信二維碼
微信二維碼
本文詳細介紹無機房電梯的相關產品詳情,并以高清素材匹配本欄目,給予瀏覽者更為寬泛的閱讀體驗

凱爾菱電(山東)電梯有限公司

銷售熱線:400-0537-868 / 0537-7120666
供應電話:0537-7912777
辦公電話:0537-7193999
手機:15953726888 / 13696370699
傳真:0537-7857666
郵箱:sdddt@163.com
網址:www.cnlxhg.com.cn
地址:山東省濟寧市汶上縣二環南路

信息詳情

無機房電梯

       以深諳環保理念,節能降耗,節約建筑面積,提高設計自由度為己任的無機房電梯,充分體現綠色人文精神,該款電梯只需要一個自己獨立的井道空間,無需機房,與同載重量級別的傳統電梯相比,節約電能40%,節約建筑面積10%。

減少40%的電梯能耗

       采用永磁同步無齒輪曳引機,有效減少能耗可以減少能耗40%之多,實現電梯主機免維護。

節約10%的機房面積

       無機房電梯占用空間進一步壓縮,大大提高了建筑空間利用率。機房與井道一體化的設計,給電梯和建筑物的設計帶了極大自由度。

無機房電梯

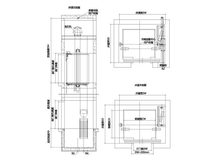
無機房乘客電梯(住宅電梯)土建示意圖

無機房電梯

無機房電梯


無機房電梯
無機房電梯 2019-4-15 本文被閱讀 14997 次
上一條:小機房電梯下一條:中瑋星悅城蘭庭

同類產品

凱爾菱電(山東)電梯有限公司 - 聯系方式
凱爾菱電(山東)電梯有限公司
銷售熱線:400-0537-868 / 0537-7120666
供應電話:0537-7912777   辦公電話:0537-7193999
手機:15953726888 / 13696370699    傳真:0537-7857666
郵箱:sdddt@163.com
網址:www.cnlxhg.com.cn    地址:山東省濟寧市汶上縣二環南路
企業信息公示
二維碼

版權所有:凱爾菱電(山東)電梯有限公司    魯ICP備16021130號-1