宝贝腿开大一点你真湿h,丰满成熟的老寡妇bd,女儿的爱人2,精品白浆,91国产免费看,看到下面流水的视频,小妮子又嫩又紧h,台湾同志男男gay1069
凱爾菱電(山東)電梯有限公司官網,歡迎來電咨詢:400-0537-868
凱爾菱電(山東)電梯有限公司

凱爾菱電(山東)電梯有限公司

KYLERYODEN(SHANDONG)ELEVATOR CO.,LTD.
服務熱線
網站首頁 公司簡介 產品展示 工程案例 新聞中心 企業風采 資質榮譽 聯系我們
您現在的位置:網站首頁>自動扶梯

— 自動扶梯 —

乘客電梯

無機房電梯

小機房電梯

觀光電梯

醫用電梯

別墅電梯

載貨電梯

無機房載貨電梯

汽車電梯

雜物電梯

自動人行道

自動扶梯

垂直往復式滾筒提升機

立體車庫

自動扶梯

微信二維碼
微信二維碼
本文詳細介紹自動扶梯的相關產品詳情,并以高清素材匹配本欄目,給予瀏覽者更為寬泛的閱讀體驗

凱爾菱電(山東)電梯有限公司

銷售熱線:400-0537-868 / 0537-7120666
供應電話:0537-7912777
辦公電話:0537-7193999
手機:15953726888 / 13696370699
傳真:0537-7857666
郵箱:sdddt@163.com
網址:www.cnlxhg.com.cn
地址:山東省濟寧市汶上縣二環南路

信息詳情

自動扶梯


本公司系列自動扶梯產品,充分應用新型材料及先進技術設計、制造。具有精巧結構,精良梯路、精致帶路、精美外觀,廣泛適用于商場、超市地鐵、機場等大客流量的場所,為建筑平添一道靚麗的流動風景。

壽命長

       桁架采用矩形鋼,獨糊的結構,強度高,防腐處理徹底,效果好,壽命長

噪音小

       大直徑的梯級渡輪,運行平衡,噪音更小,壽命加長

更安全

       人性化的扶手入口保護加裝毛刷,更加安全

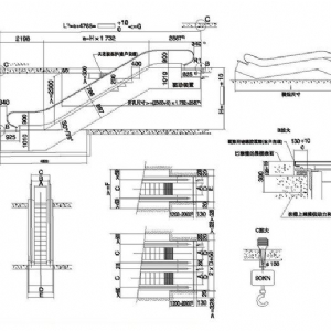
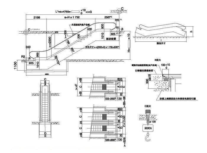
30°~35°自動扶梯土建示意圖

自動扶梯

自動扶梯


自動扶梯
自動扶梯 2019-4-15 本文被閱讀 6062 次
上一條:太陽能光伏電梯下一條:中瑋星悅城蘭庭

同類產品

凱爾菱電(山東)電梯有限公司 - 聯系方式
凱爾菱電(山東)電梯有限公司
銷售熱線:400-0537-868 / 0537-7120666
供應電話:0537-7912777   辦公電話:0537-7193999
手機:15953726888 / 13696370699    傳真:0537-7857666
郵箱:sdddt@163.com
網址:www.cnlxhg.com.cn    地址:山東省濟寧市汶上縣二環南路
企業信息公示
二維碼

版權所有:凱爾菱電(山東)電梯有限公司    魯ICP備16021130號-1