宝贝腿开大一点你真湿h,丰满成熟的老寡妇bd,女儿的爱人2,精品白浆,91国产免费看,看到下面流水的视频,小妮子又嫩又紧h,台湾同志男男gay1069
凱爾菱電(山東)電梯有限公司官網,歡迎來電咨詢:400-0537-868
凱爾菱電(山東)電梯有限公司

凱爾菱電(山東)電梯有限公司

KYLERYODEN(SHANDONG)ELEVATOR CO.,LTD.
服務熱線
網站首頁 公司簡介 產品展示 工程案例 新聞中心 企業風采 資質榮譽 聯系我們
您現在的位置:網站首頁>小機房電梯

— 小機房電梯 —

乘客電梯

無機房電梯

小機房電梯

觀光電梯

醫用電梯

別墅電梯

載貨電梯

無機房載貨電梯

汽車電梯

雜物電梯

自動人行道

自動扶梯

垂直往復式滾筒提升機

立體車庫

小機房電梯

微信二維碼
微信二維碼
本文詳細介紹小機房電梯的相關產品詳情,并以高清素材匹配本欄目,給予瀏覽者更為寬泛的閱讀體驗

凱爾菱電(山東)電梯有限公司

銷售熱線:400-0537-868 / 0537-7120666
供應電話:0537-7912777
辦公電話:0537-7193999
手機:15953726888 / 13696370699
傳真:0537-7857666
郵箱:sdddt@163.com
網址:www.cnlxhg.com.cn
地址:山東省濟寧市汶上縣二環南路

信息詳情

小機房電梯

       為節省建筑空間,拓展建筑物更大空間利用率,使運行更靈敏可靠,使樓宇更優雅美觀,小機房電梯,采用緊湊密集型永磁同步無齒輪曳引機和特殊設計的控制柜,使機房面積達到與井道面積完全相同。

減少40%的電梯能耗

       采用永磁同步無齒輪曳引機,有效減少能耗,可以減少能耗40%之多,實現電梯主機免維護。

節約50%的機房面積

       機房空間僅僅是電梯井道的一個延伸,因此建造方便,能耗成本低。緊湊的永磁同步無齒輪主機可以為機房留出更大的空間,放置其他控制設備。

小機房電梯

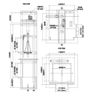
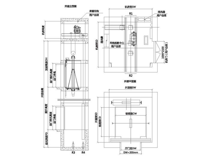
小機房乘客電梯(住宅電梯)土建示意圖

小機房電梯

小機房電梯


小機房電梯
小機房電梯 2019-4-15 本文被閱讀 7067 次
上一條:觀光電梯下一條:中瑋星悅城蘭庭

同類產品

凱爾菱電(山東)電梯有限公司 - 聯系方式
凱爾菱電(山東)電梯有限公司
銷售熱線:400-0537-868 / 0537-7120666
供應電話:0537-7912777   辦公電話:0537-7193999
手機:15953726888 / 13696370699    傳真:0537-7857666
郵箱:sdddt@163.com
網址:www.cnlxhg.com.cn    地址:山東省濟寧市汶上縣二環南路
企業信息公示
二維碼

版權所有:凱爾菱電(山東)電梯有限公司    魯ICP備16021130號-1