
The company freight elevators apply micro-computer computer control technoIogy. It uses high intensity cars that have been designed and manufactured by section materials. It can transport the freight under various awfuI conditions. The company freight elevator carries out the current national standards such as GB7588 "The Elevator Mannfac-ture, Installation Safety Standarards" etc. The company freight elevator is your ideal choice in the factory, warehonse, department store, shopping center, housing property management center etc. because of its safe;durable and reliable properties, high sructural strength, smooth operation, larqe door opening distance, high cost perfar-mance and so on.
The multiple door opening modes
In order to satisfy different entry/exit requirements from vast users,The company has in the freight elevator door, in double fold door, side door, through the gate and three door and five door ways,flexible matching and factory, warehouse,department stores,Property Center building structure.

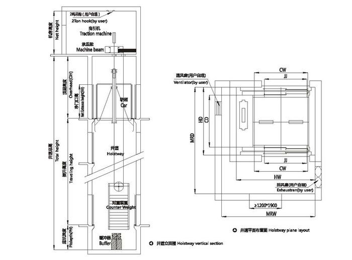
FREIGHT ELEVATOR CONSTRUCTION PARAMETERS


| 上一條:FREIGHT ELEVATOR | next:Business license |
















