
In order to know the concept of environmental protection, enerqv saylng, saying buiIding area,improve the degree of freedom in desiqn is the responsibiIity of the elevator without machine room, fuIly reflects the green splrit of humanlty, the elevator needs only one independent welI space,without room,with the same load weight level than conventional elevators, saying energy by 40%, save construction area of 10%.
Saving up to 40%energy
A gIobaI leader in permanent magnetic synchronous gearless traction machine,effectively reduce the energy consumption, can reduce energy consumption 40%, the realiration of elevator mainframe maintenance free.
Saving upt010%a rea ofmachine room
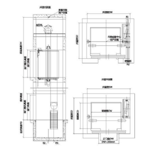
The machine roomless elevator saving even more space. The combined machine room with hoist-way give the elevator and constuction designer more free-dom.

MACHINE ROOMLESS PASSENGER ELEVATOR(HOUSE ELEVATOR)CONSTRUCTION PARAMETERS


| 上一條:SAMLL MACHINE RPPM | next:Business license |















