
To save space, expand the building larger space utiIizatlon rate make the operation more flexlble and reliable, make the bulIding more eleqant appearance,the smaII machine room passenger elevator, the compact type permanent maqgnet synchronous gearless traction machine and the speciaI design of the control cabinet, make room area is achleved and the well area is exactly the same.
Saving up to 40%energy
A gIobaI leader in permanent magnetic synchronous gearless traction machine,effectively reduce the energy consumption, can reduce energy consumption 40%, the realization of elevator mainframe maintenance free.
Saving up to 50%area of machine room
Room space is just an extension of the eIevator hoistway, so the construction is convenien, low energy consumption and cost. Cornpact gearless permanent magnet synchronous machine can provide room for more space,placing the other control device.

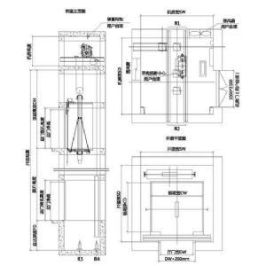
SAMLL MACHINE RPPM PASSENGER ELEVATOR(HOUSE ELEVATOR)CONSTRUCTION PARAMETERS


| 上一條:PANORAMIC ELEVATOR | next:Business license |















